Stanhope Street, Camden, London, NW1

To Rent - £2,400 pcm   Tenancy Info

Reception

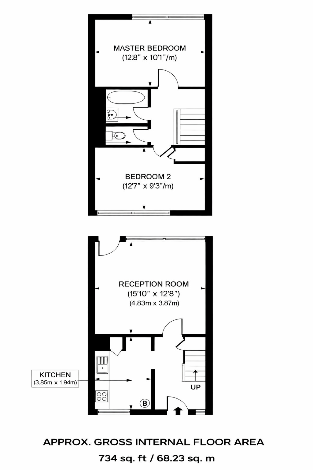
2 Bedrooms, 1 Reception, 1 Bathroom, Flat

This bright and spacious split-level apartment offers two generous double bedrooms and is presented in good condition throughout. The property features a large separate reception room, a modern fitted kitchen, a well-appointed bathroom, and an additional cloakroom. With wood flooring and neutral décor, the flat provides a clean and contemporary feel.

Ideally positioned between Euston, Warren Street, Regent’s Park, and the West End, it offers exceptional convenience for transport, shopping, dining, and green spaces


Kitchen Bedroom1 Bedroom2 Bathroom
Branch Address
161 Kentish Town Road<br>Camden<br>London<br>NW1 8PD
Contact
A: Rochester Place
T: 020 7284 4747
E: info@rochesterplace.co.uk
Reference: ROCH_003085
IMPORTANT NOTICE
Descriptions of the property are subjective and are used in good faith as an opinion and NOT as a statement of fact. Please make further specific enquires to ensure that our descriptions are likely to match any expectations you may have of the property. We have not tested any services, systems or appliances at this property. We strongly recommend that all the information we provide be verified by you on inspection, and by your Surveyor and Conveyancer.