5 Bedroom House  Sold STC £2,200,000

EPC Rating D

Freehold

We are excited to present this unique and rarely available end of terrace grand Victorian home with versatile living spaces. It has the most glorious, exceptionally large mature private garden which has the added rare advantage of having a separate side access. This property must be seen as it is impossible to capture the character of this home and to show the amazing proportions of each and every room.

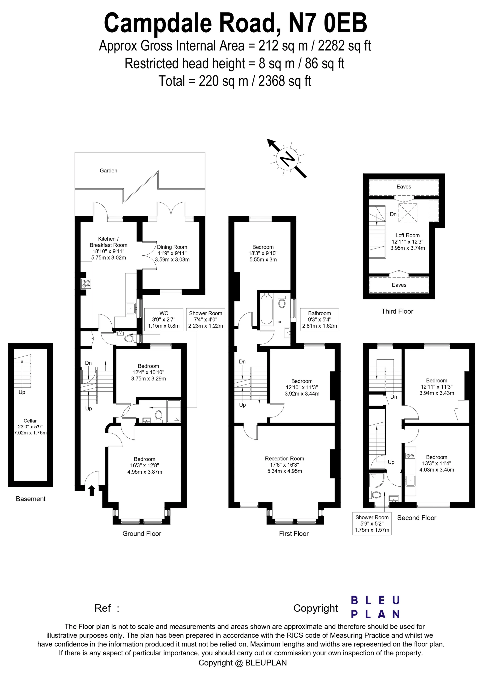
This end of terrace home is situated in the heart of Tufnell Park, and offers 6/7 bedrooms with a choice of office and/or reception rooms, there are 3.5 bathrooms and the stunning private garden with side access allowing muddy dogs, children and bicycles to come through the garden and not through the house. The charming country style kitchen leads to a sunny conservatory which has scope to extend to the rear and to the side where, if you wished, a modern style glass extension could be added also there are options to add a terrace all subject to planning permission. There is a downstairs WC and a very useful cellar which houses the utilities. The entire house has plenty of allocated storage and an abundance of period features including original fireplaces, tall ceilings, sash windows and the house has been very well maintained with a new boiler.

The views both front and back are so green and leafy from with the park and tennis courts facing the front of the property and open skies and gardens from the rear windows . Campdale Road is a quiet residential area with many cafes and bakeries, an excellent gastro pub which tends to be a community hub for locals and their families. It is ideally located for easy access to Tufnell Park Station (Northern line) and Upper Holloway. There are plenty of bus options in easy reach to access Highgate, Islington, Kings X, Camden and Kentish Town. Hampstead Heath and the wild outdoor swimming ponds and Lido are a walk away. Further, there are a number of excellent schools in walking distance and the well loved Yerbury is a 3 minute walk away and is an outstanding primary school. There are also excellent secondary schools and nurseries to choose from. Many families also choose to attend Collège Français Bilingue de Londres.

EPC for Campdale Road, Tufnell Park Road, London, N7

Energy
blank Current Potential

Location

Floor Plan

Floor Plan 1

Property Images

Exterior
Kitchen 1
Kitchen 1.3
Garden 1
Garden 1.1
Garden 1.2
Garden 1.3
Office
Downstairs WC
Bathroom 1
Lounge 1.1
Lounge 1.3
Bedroom 1
Bedroom 2
Bedroom 3
Bedroom 4
Bathroom 2

Arrange a Viewing

Arrange a Viewing

This property is currently Sold STC. However, register your details below and we will contact you if it becomes available again.

Mortgage Calculator

Mortgage Details

Results

Stamp duty calculation

See full breakdown

Total SDLT due

Below is a breakdown of how the total amount of SDLT was calculated

Up to £0k (Percentage rate 0 %)

Above £0k and up to £0k (Percentage rate 0 %)

Above £0k and up to £0k (Percentage rate 0 %)

Above £0k and up to £0k (Percentage rate 0 %)

Above £0k and up to £0m (Percentage rate 0 %)

Above £om (Percentage rate 0 %)

Please note: This is for illustrative purposes only. The above calculator should not be relied upon when making financial decisions. Please seek advice from a specialist financial provider.

IMPORTANT NOTICE

Descriptions of the property are subjective and are used in good faith as an opinion and NOT as a statement of fact. Please make further specific enquires to ensure that our descriptions are likely to match any expectations you may have of the property. We have not tested any services, systems or appliances at this property. We strongly recommend that all the information we provide be verified by you on inspection, and by your Surveyor and Conveyancer.